Sobre o projeto
ID: 00210001Maravilha
Informações adicionais
Área Construída:
200,00 m²
Área Útil:
200,00 m²
Dimensões:
10.00 × 20.00m
Lote Mínimo:
13.00 × 24.50m
Quartos:
3
Suítes:
3
Banheiros:
4
Vagas:
3

Projetista
Sainz Arquitetura
Buscamos o escasso, a qualidade e o tempo.
Galeria de imagens













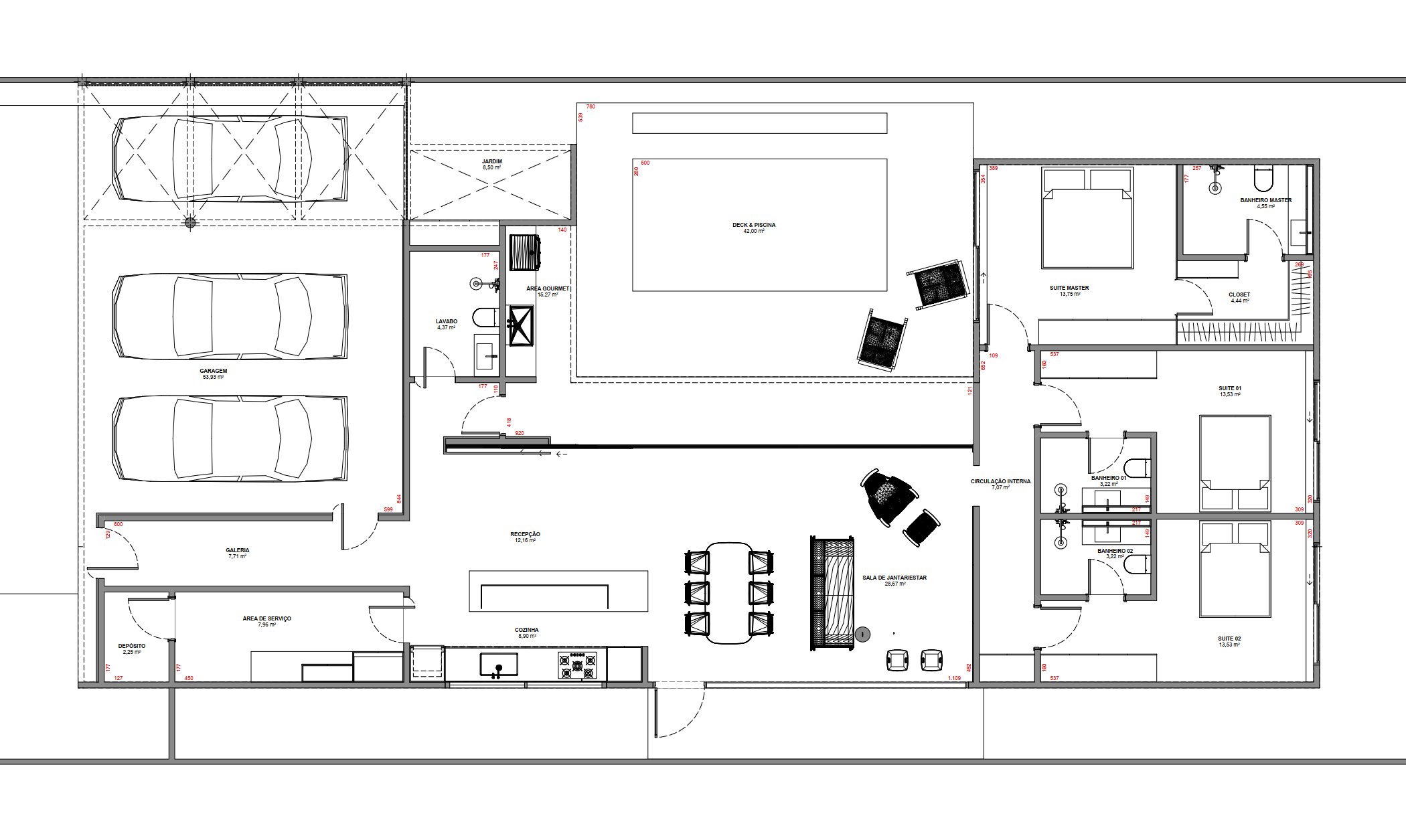
Plantas baixas
Confira abaixo, em detalhes, as plantas baixas humanizadas de cada um dos pavimentos da casa.
Térreo

Sobre a obra
Confira abaixo porque a Casa em 7, além de segura, é a escolha para construir sua casa com a melhor qualidade possível
Lightwall: o futuro da construção civil
Descubra porque o Lightwall é a tecnologia construtiva que mais cresce no Brasil

O que é o Lightwall?
Com o painel modular Lightwall, a redução do tempo de execução é drástica, a economia em materiais é intensa e o acabamento de alta qualidade é garantido. Além de oferecer agilidade e economia, o sistema Lightwall reduz significativamente o desperdício de materiais, ajudando a minimizar o impacto ambiental.
O futuro da construção é sustentável, e a Lightwall está à frente nessa jornada. Construções de Lightwall podem contar com um índice de redução sonora (Rw) de até 51dB. Além disso, o Lightwall também é resistente ao fogo e oferece excelente conforto térmico.
Os paineis pré-fabricados eliminam diversas etapas da construção com alvenaria tradicional. A médio e longo prazo, Lightwall também é mais sustentável e econômico porque proporciona isolamento térmico, aumentando a eficiência energética das construções.
Além da versatilidade de acabamentos, Lightwall pode ser usado para paredes, lajes e coberturas de estruturas de diversos tipos, desde grandes edifícios até galpões industriais e construções residenciais.
Prazo garantido
Essa é a nossa especialidade! Com uma experiência de quase 20 anos no ramo de construção civil, executaremos sua obra com agilidade e qualidade de ponta. Temos tanta confiança em nossas equipes e no nosso trabalho que damos uma garantia para todos os nossos clientes: nós garantimos que - uma vez iniciada - a obra da sua casa será concluída em, no máximo, 7 meses.
Abaixo segue o cronograma para a realização da obra deste projeto:
| Atividade | 1º mês | 2º mês | 3º mês | 4º mês | 5º mês | 6º mês | 7º mês |
|---|---|---|---|---|---|---|---|
| Serviços Iniciais | |||||||
| Infraestrutura | |||||||
| Estrutura | |||||||
| Vedações | |||||||
| Cobertura | |||||||
| Impermeabilizações | |||||||
| Calhas e Rufos | |||||||
| Instalações | |||||||
| Calçadas e Paisagismo | |||||||
| Acabamentos | |||||||
| Esquadrias e Piso Vinílico | |||||||
| Limpeza Final | |||||||
| Dias corridos | 30 | 60 | 90 | 120 | 150 | 180 | 210 |
Ainda está em dúvida sobre esse projeto?
Não se preocupe... Temos outras cartas na manga!
Além de adaptarmos qualquer um dos projetos acima, nós também podemos criar um novo exclusivo, do jeito que você e sua família precisam!
Próximos passos
Depois que você monta sua casa aqui no site, a sua jornada conosco segue 7 passos:
